
Vision immersive du feu
Contemporain et intemporel
Performance et confort durables

Revêtement en acier
Description détaillée
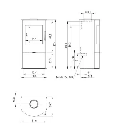
Ce modèle séduit par sa large vitre frontale bombée, conçue pour offrir une vue immersive sur les flammes.
Son revêtement en acier aux lignes simples et épurées lui confère un design contemporain et élégant, un choix parfait pour les intérieurs modernes où l’esthétique compte autant que la performance.
Avec une puissance nominale de 5,1 kW, un rendement de 81,1 % et une émission de CO de 0,081 %, ce modèle combine performance énergétique et respect de l’environnement, affichant une classe énergétique A+.
Fiche technique
Puissance : 5.1 kW
Rendement : 81.1%
Dimensions max. bûches : 25cm
Dimensions : L 51.6cm x P 39.7cm x H 98.2cm
Efficacité énergétique saisonnière : 71.1%
Classe énergétique : A+
N’hésitez pas à nous contacter via notre formulaire de contact ! Un de nos conseillers vous répondra le plus rapidement possible.
Vous hésitez sur le modèle de poêle le plus adapté à votre logement ? Contactez-nous dès maintenant, nous vous aidons à faire le bon choix sans perdre de temps.
58 avenue des 3 Provinces Cholet (49)
Parc d’Activité de Malachappe St-Thuriau (56)
40 Bd Pierre Lefaucheux
Le Mans (72)